บริการรับสร้างบ้าน Renovate น็อคดาวน์ สามารถเข้าอยู่ได้ทันทีหลังสร้างเสร็จ
บริการรับสร้างบ้าน
Renovate น็อคดาวน์สามารถเข้าอยู่ได้ทันทีหลังสร้างเสร็จ
ที่ตั้ง
8 มู่ 4 ตำบล สำโรงเหนือ อ.เมือง สมุทรปราการ
***ราคา
750,000 บาท
บริษัท
คอนสแตนซ์ คอนสตรัคชั่น จำกัด ผู้ดำเนินการก่อสร้าง
Project : ออกแบบและสร้างตาม comment ของผู้ว่าจ้าง
Location 13°34'17.1"N 100°53'08.0"E
https://goo.gl/maps/qpn3TcCUJQShQDY27
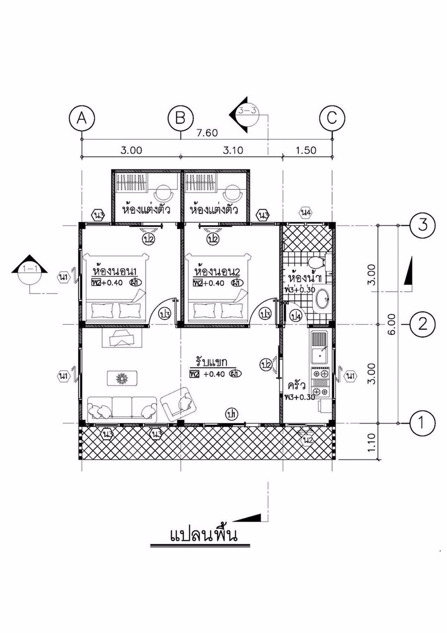
พื้นที่
60 ตร.ม.
บริการสร้างบ้านน็อคดาวน์
ที่มีความแข็งแรงด้วยวัสดุที่คงทนได้มาตราฐาน เราทำงานด้วย ประสบการณ์
และหลักวิชาการ ไม่ต่ำกว่า 15 ปี
-
คอนโดทาวน์เฮ้าส์ และบ บ้านจัดสรร มาทำน็อคดาวน์ ด้วยประสบการณ์ต่างๆ
เราจะตอบโจทย์ความต้องการลูกค้าได้อย่างดี มีแบบให้เลือกหลากหลาย และกำลัง Development
Type
-
แบบบ้านต่างๆ Style Modern สมัยใหม่เหมาะกับยุคสมัยที่เรียบง่ายและมีเอกลักษณ์
รับต่อเติม และ ปรับปรุง บ้านเก่า ทาวน์เฮ้าส์
ออกแบบโดยสถาปนิกมืออาชีพควบคุมโดยวิศวกรชำนาญการ
-
โครงสร้างหลักของบ้านออกแบบมาอย่างดีให้มีความมั่นคงและแข็งแรงจากวิศวกรผู้มากประสบการณ์
พร้อมทั้งการเลือกวัสดุอย่างดีที่ทนทานและได้มาตราฐานใน การสร้าง
อายุการใช้งานเทียบเท่าบ้านก่ออิฐ ฉาบปูนทั่วไป
-
ก้าวหน้ากว่าด้วยระบบ Knock down ที่สามารถทำงานได้รวดเร็วและคล่องตัว
สามารถก่อสร้างได้แม้ในพื้นที่ที่ยากลำบากและจำกัด
-
ร้อมสรรพด้วยระบบไฟฟ้าและน้ำประปาโดยไม่ต้องทำการติดตั้งเพิ่มแต่อย่างใด
สามารถเข้าอยู่ได้ทันทีหลังสร้างเสร็จ
-
สไตล์โมเดิร์นพลิกรูปแบบบ้านน็อคดาวน์แนวเดิม ๆ ของเมืองไทย ในมุมมองต่าง ๆ
กับความอิสระใหม่ ๆ พร้อมก้าวสู่ยุคสมัยที่เดินไปข้างหน้า
เป็นโครงสร้างเหล็ก
ผนังกรุด้วยสมาร์ทบอร์ด พื้นห้อง พื้นห้องน้ำปูกระเบื้อง ตัวบ้านติดตั้งระบบไฟฟ้า
ประปา สุขภัณฑ์
***
พร้อมสร้างทุกจังหวัด
สนใจติดต่อ
พัฒนกฤษณ์
น็อคดาวน์
Tel : 094-2826353,092-6415987
http://line.me/ti/p/~p.knockdown
Email : p_knockdown@hotmail.com
FB : https://www.facebook.com/profile.php?id=100005277811423
ดูแบบบ้านเพิ่มเติมได้ที่
http://pmodernknockdown.com/product.html
แบบบ้านพร้อมมีราคาบอกข้างๆ
แต่สามารถออกแบบใหม่ ตามขนาดพื้นที่ และประโยชน์ใช้สอยให้มากที่สุด
สรุปราคาตามงบประมาณเจ้าของงาน




